Unique selling points:
-
New global riverside lifestyle in the heart of the Robertson precinct
-
First new launch since 2012 in Robertson Quay
-
Rare 999-year leasehold mixed development by the Singapore River
-
Short travel distance to Orchard, CBD & Marina Bay
-
Full amenities within a short walking distance
-
Reputable top SG-based developers
The Robertson Opus | Project Summary
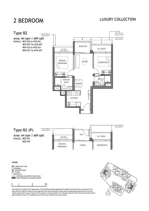
The Robertson Opus | Unit Types
The Robertson Opus | 11 Unity Street
The Robertson Opus is the redevelopment of the former Robertson Walk. This rare 999-year leasehold mixed development is set to become a landmark along Unity Street in the prestigious District 9, offering an elite lifestyle with amenities in the Robertson Quay along the Singapore River. The residents of the Robertson Opus will enjoy convenient access to many dining, entertainment options along the vibrant Robertson Quay and scenic Singapore River.
There ar...

















